ENGINEERING PROJECTS
Our services include professional consultancy for Engineering Design and Building Information Modeling (BIM) solutions.






PROJECTS - BIM, ENINEERING DESIGN, 3D MODELING & 3D rENDERING
Construction design - BIM, Visualization & CONCEPTUAL
AZNIZAWAN SDN BHD - 3 blocks apartments (Rumah Selangorku) – Sek U12, SHAH ALAM, SELANGOR






















Construction design - Visualization & tENDER dESIGN
FAJARBARU GROUP BHD - LRT3 - PACKAGE GS01 – BANDAR UTAMA


Construction design - Visualization & tENDER dESIGN
FAJARBARU GROup BHD - LRT3 - PACKAGE GS03 – DAMANSARA


Construction design - Visualization & BIM
FAJARBARU Group BHD - Rica residences – sentul, KL











Construction design - MEPS coordinated 4 wall drawings
FAJARBARU GROUP BHD - Rica residences – sentul, KL


Construction design - clash analysis- raw findings
FAJARBARU GROUP BHD - Rica residences – sentul, KL


Construction design - CONCEPTUAL, Visualization & BIM
ALFRED TALKE SDN BHD - TALKE Warehouse – westportS, MALAYSIA




Construction design - CONCEPTUAL, Visualization & BIM
SEA HAWK SDN BHD - BULK LIQUID TERMINAL – NORTHPORT




Construction design - CONCEPTUAL, Visualization & BIM
SEA HAWK - Bulk liquid farm & WAREHOUSE – PORT OF JEBEL ALI, DUBAI




Construction design - CONCEPTUAL, Visualization & BIM
SEA HAWK - PETROCHEMICAL & CHEMICAL WAREHOUSE – WESTPORTS, MALAYSIA




Construction design - CONCEPTUAL & Visualization
PIONEER PAC SB - WAREHOUSE GENERAL GOODS – NORTH PORT, MALAYSIA




Construction design - MOW-CONCEPT studies
NS Bluescope - ROOF REFURBISHMENT – KLANG, MALAYSIA














Construction design - Visualization & BIM
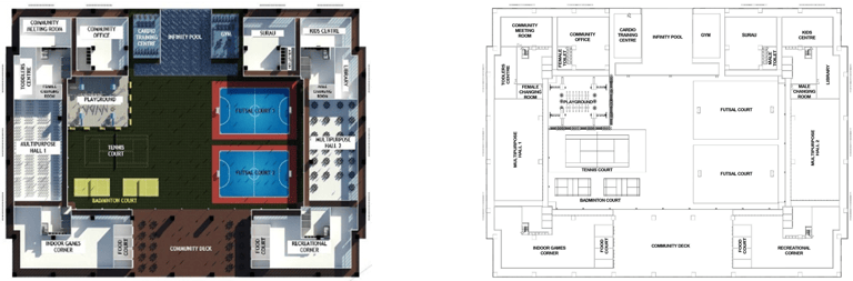
AZNIZAWAN SDN BHD - CONDOMINIUM – mont kiara, kuala lumpur


Construction design - BIM
TROPICAL PROFILE SB - sungai marang bridge, terengganu, MALAYSIA


Construction design - BIM
TROPICAL PROFILE SDN BHD - sungai BULOH bridge, SELANGOR, MALAYSIA






Construction design - BIM
CERGAS MURNI SB - MODEL REVIEW (STRUCTURE, ARCHITECTURE & mepf)








Construction design - BIM
FBG - BIM MODEL COORDINATED - MULTIDISCIPLINE COORDINATION DRAWING








Construction design - BIM
FBG - BIM MODEL COORDINATED - 4D SIMULATION (WORK PROGRESS TRACKING)


Construction design - Visualization & BIM
EKKU ENGINEERING SDN BHD - WEDDING HALL – rawang, selangor








Construction design - CONCEPTUAL Visualization & RENDERING
Restaurant NASI KANDAR MUSTIKA – rnr rawang, plus highway, malaysia




Construction design - CONCEPTUAL Visualization
AZNIZAWAN SDN BHD - Private bunglow – negeri sembilan, malaysia






Construction design - CONCEPTUAL Visualization
ROCHE (m) SB - Blood donation center – ppum – sunway pyramid






Construction design - CONCEPTUAL Visualization
EKKU ENGINEERING SDN BHD - Modular mini house – perth, australia






MECHANICAL design - PRODUCT & ASSEMBLY DESIGN
SIEMENS mALAYSIA & SINGAPORE - RTS LInk, johor bahru and singapore






MECHANICAL design - PRODUCT, ASSEMBLY & SYSTEM DESIGN
SNOWCOIL SDN BHD, CHILLER MANUFACTURER – Melbourne, Australia
























MECHANICAL design - PRODUCT & ASSEMBLY DESIGN
BANFONG SDN BHD - METAL PRODUCT FABRICATOR - KLANG, MALAYSIA




MECHANICAL design - PRODUCT, ASSEMBLY & SYSTEM DESIGN
SETIA STEEL SDN BHD - METAL FABRICATOR - TELEKOM MALAYSIA & tnb, MALAYSIA




MECHANICAL design - PRODUCT, ASSEMBLY & SYSTEM DESIGN
PETRO TENAGA SB - O&g contractor - PETRONAS, PENGERANG, JOHOR, MALAYSIA






Your Partner in Engineering Excellence
At Green Apple Engineering, we specialize in engineering design consultancy and CAD modeling, ensuring effective project processes tailored to meet our clients' real-time needs and aspirations.
Engineering Design Consultancy Services
Building Information Modeling Experts
Our dedicated team collaborates closely with clients, establishing robust project processes for assessing on BIM Tools and providing a solid foundation for successful outcomes in every endeavor.

